vectorial 6

Proyecto de actividad hogar de los jubilados en Guadassuar

Ayuntamiento de Guadassuar, con domicilio en Calle Mayor nº 43 Guadassuar CP 46610 (Valencia), encarga la revisión y adecuación a la normativa actual del Hogar de los Jubilados en C/ De La Ermita nº 52, la realización del presente proyecto de REFORMA Y ADECUACIÓN DEL HOGAR DE LOS JUBILADOS Y DE ACTIVIDAD SUJETA A DECLARACIÓN RESPONSABLE AMBIENTAL.

Pretende el presente Proyecto la obtención de revisión y adecuación a la normativa actual de la Licencia de Obra y Licencia Ambiental por parte del Ayuntamiento de Guadassuar para la actividad que se ha estado habilitada.

En el presente proyecto se expone tanto la obra a realizar en el edificio como las condiciones técnicas que reunirá esta actividad y de conformidad con lo dispuesto en la Ley 14/2010, de 3 de diciembre, de la Generalitat, de Espectáculos Públicos, Actividades Recreativas y Establecimientos Públicos y el Decreto 143/2015, de 11 de septiembre por el que se desarrolla la anterior Ley.

El edificio está destinado a Jubilados y pensionistas. Es un edificio de 1930 según datos de catastro y utilizado anteriormente como cuartel de la Guardia Civil.

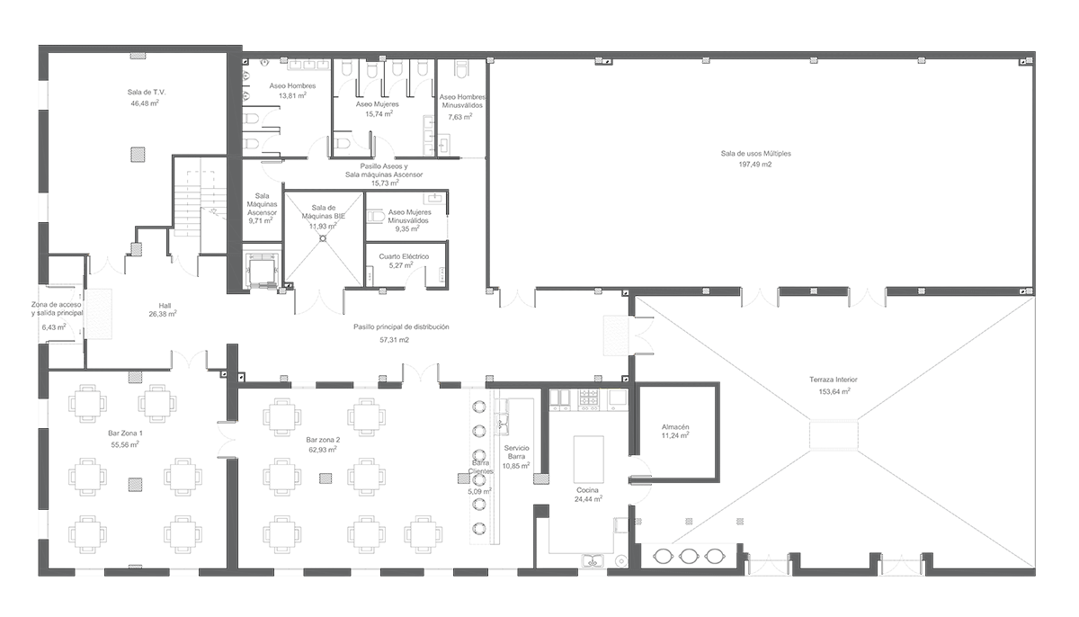
El edificio tiene dos plantas, planta baja y planta primera. La planta baja está compartimentada en diferentes zonas como: Zaguán, pasillo de distribución principal, Sala de TV, Bar, Sala de usos Múltiples, Almacenes, sala de máquinas ascensor, Aseos y Aseos accesibles. La primera planta no tendrá ningún uso.

La reforma y adecuación consiste en la ampliación de los baños según aforo actual, sala de grupo de presión ya que actualmente las Bies conectan a la red de abastecimiento, cambios de las Bies_45 mm a Bies_25 mm, la demolición de la cocina actual y redistribución de la nueva cocina del bar, ignifugación de las cerchas, desinstalación de conductos y máquinas interiores de clima sin funcionamiento, eliminación de la moqueta de las paredes en la sala de usos múltiples, instalación de puertas automáticas en el acceso principal al Hogar de los Jubilados, instalación de barras antipánico, falso techo registrable y acústico y por ultimo pintado interior.

Logos de las entidades cuyo proyecto es financiado por la Unión Europea – NextGenerationEU

«Financiado por la Unión Europea – NextGenerationEU. Sin embargo, los puntos de vista y las opiniones expresadas son únicamente los del autor o autores y no reflejan necesariamente los de la Unión Europea o la Comisión Europea. Ni la Unión Europea ni la Comisión Europea pueden ser consideradas responsables de las mismas»